Beschrijving
Midden in het centrum van Aalsmeer wordt het pand van Foto de Boer, Zijdstraat 43 verbouwd naar @43 Residence;
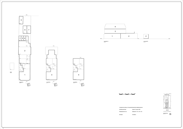
In het bestaande woon winkelpand worden meerdere appartementen gerealiseerd. Oplevering : Q3 2027.
Vandaag starten wij met de verkoop van Zijdstraat 43 B, gebruiksoppervlakte ca 100m2 gelegen op de eerste verdieping. Natuurlijk bereikbaar met een lift. Op bijgevoegde visualisaties en tekeningen krijgt u een indruk van het te realiseren appartement. Bij het appartement hoort een berging gesitueerd op de begane grond aan de achterzijde van het pand, namelijk Gedempte Sloot 80 of 82.
Eén parkeer plaats is separaat te koop voor € 20.000,- k.k.
U woont midden in het gezellige centrum van Aalsmeer. Vanuit de voordeur stapt u zo de winkelstraat in met de nodige winkels, scholen, sportfaciliteiten, restaurants en horeca.
Gelegen nabij de Westeinderplassen waar u heerlijk kunt recreëren in de zomer en kunt genieten van al het moois wat deze omgeving te bieden heeft. Met het recent vernieuwde HOVASZ-traject zijn Schiphol, Amsterdam en Haarlem met het OV uitstekend bereikbaar.
Appartement aan de Zijdstraat 43 B – betreft een 3 kamer appartement met ruim dakterras, een berging s op de begane grond.
Bijzonderheden:
- 3-kamer appartement 71m2. met dakterras 27m2. en een berging op de begane grond;
- Lift;
- Het appartement wordt casco opgeleverd d.w.z. exclusief keuken;
- Stelpost voor het sanitair : € 5000,- excl. btw.
- Vloerverwarming;
- Mechanische Balansventilatie;
- Spac gespoten plafonds en wanden;
- Eventuele aanpassingen qua indeling keuken of badkamer tegen meerprijs mogelijk;
- V.v.E. in oprichting, servicekosten ca. € 240,-
- Parkeerplaats separaat te koop voor € 20.000,- k.k.